About Nava Grove
A DESIRED LOCALE
Image for Illustration Only
Set in the prestigious Mount Sinai/Pandan Valley area, Nava Grove enjoys a prime location on Ulu Pandan Road in District 21. Surrounded by lush greenery from Clementi Forest, Dover Forest and nearby parks, it offers a peaceful environment with easy access to urban conveniences.
Image for Illustration Only
Image for Illustration Only
While nestled in serene setting, Nava Grove is just 5 minutes drive from the lively Holland Village and 12 minutes from Orchard Road. Nava Grove Condo consists of three 24 storey towers with 552 apartments, each thoughtfully designed with high end finishes.
The design maximizes open views and incorporates six conserved tree into the landscapping and amenities. Offering extensive recreational facilities for all ages, the project is also near top schools, including Henry Park Primary School and Methodist Girls' School.
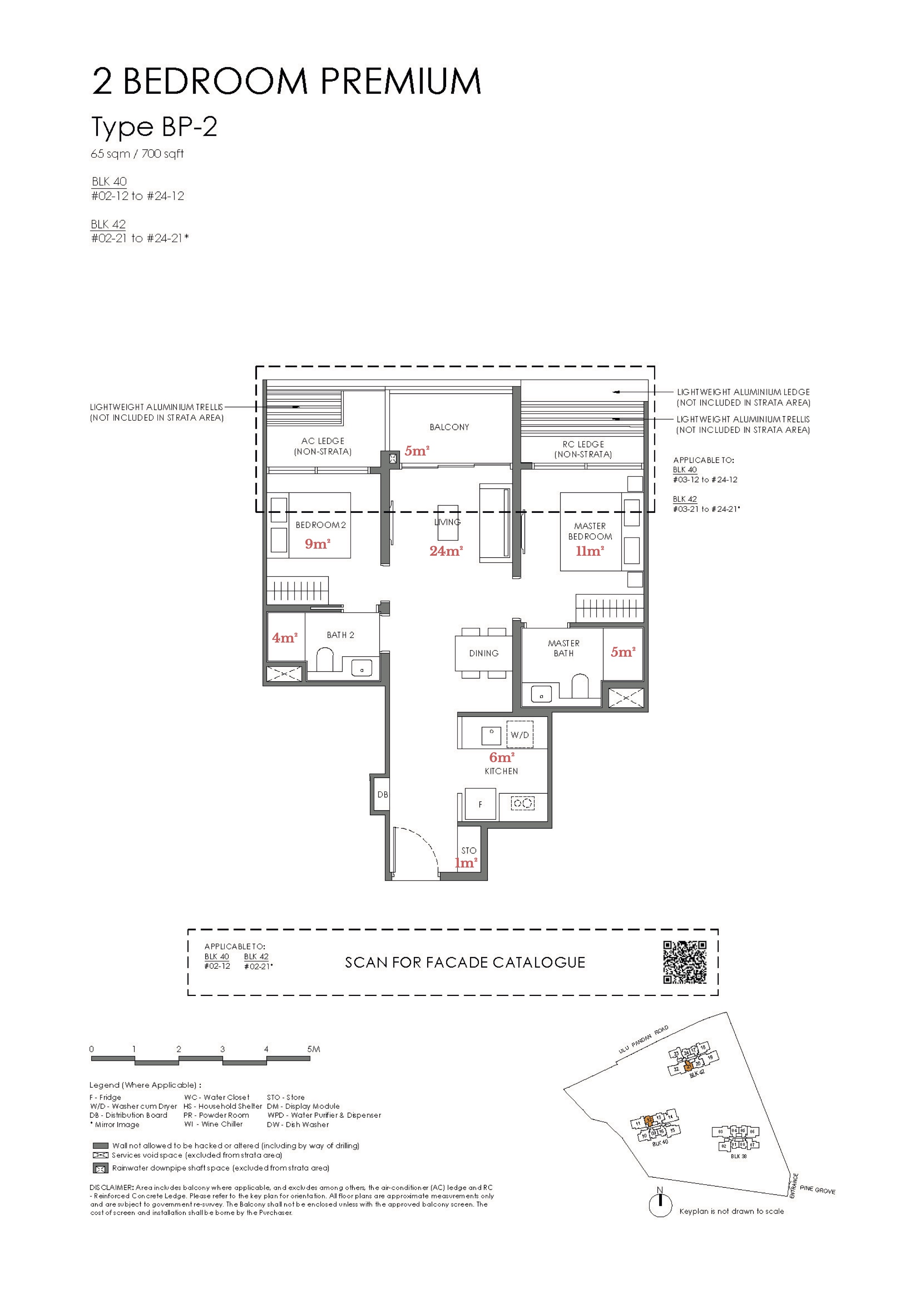
Prospective homeowners will be pleased to explore the various Nava Grove Floor Plans, each thoughtfully designed to maximize space and enhance modern living. Whether you're looking for a cozy 1-bedroom unit or a more spacious family apartment, there's a layout that caters to diverse needs.
Project Information
Property Name
Nava Grove
Property Type
Condominium
Address
38 Pine Grove, Singapore 597774
District
D21 - D21 Clementi Park / Upper Bukit Timah
Tenure
99-year leasehold
TOP Date
14 November 2028
Total Units
552
Site Area
Approx 270,000sf
Developer
Golden Ray Edge 3 Pte Ltd
Unit Type

Location Map
Nearby Places
Primary Schools
Secondary Schools
MRT Stations
Nearest Hospitals & Clinics
Parks & Recreation
Supermarkets
Unrivalled Prime Location
Located in the serene Pine Grove / Ulu Pandan enclave (District 21), Nava Grove offers a rare freehold address within one of Singapore’s most desirable city-fringe neighbourhoods. Surrounded by lush greenery and established estates, it blends prestige, privacy, and timeless value.
Seamless Connectivity
Just minutes to Dover MRT and Clementi MRT (East–West Line), with easy transfers to major lines across the island. Excellent connectivity via AYE and PIE ensures seamless access to Orchard Road, Marina Bay, and the CBD, as well as quick travel to Jurong Gateway and one-north.
Shopping & Dining Haven
Close to lifestyle hubs such as Holland Village, Clementi Mall, and The Star Vista, residents enjoy a wide variety of retail, dining, and entertainment options. From local eateries to trendy cafés and international restaurants, daily convenience meets vibrant lifestyle living.
Close to Top Schools
Within close reach of prestigious schools such as Henry Park Primary School, Pei Tong Primary, Methodist Girls’ School, Ngee Ann Polytechnic, and the Singapore University of Social Sciences—making Nava Grove an ideal choice for families prioritising quality education.
Nature & Wellness Living
Surrounded by nature parks and greenery, residents are minutes from Clementi Forest, Dover Forest, and the Ulu Pandan Park Connector. With tranquil landscapes and wellness-inspired facilities, Nava Grove offers a serene retreat while staying connected to urban conveniences.
Get In Touch With Us For Nava Grove
To access our Latest Discounts, Price Lists, Sales Brochures, Floor Plans and Showflat Appointments, kindly register below. We’ll promptly reach out to you. Thank you for your interest!
Huttons Asia Pte Ltd | License No.: L3008899K
Disclaimer: While reasonable care has been taken in preparing this website, neither the developer nor its appointed agents guarantee the accuracy of the information provided. To the fullest extent permitted by law, the information, statements, and representations on this website should not be considered factual representations, offers, or warranties (explicit or implied) by the developer or its agents. They are not intended to form any part of a contract for the sale of housing units. Please note that visual elements such as images and drawings are artists’ impressions and not factual depictions. The brand, color, and model of all materials, fittings, equipment, finishes, installations, and appliances are subject to the developer’s architect’s selection, market availability, and the developer’s sole discretion. All information on this website is accurate at the time of publication but may change as required by relevant authorities or the developer. The floor areas mentioned are approximate and subject to final survey.
